Borgo Alpino
Temu'


Cos'è una certificazione CasaClima?

Le tecnologie costruttive
Visita la lottizzazione


Fotografie di cantiere
In Alta Valle Camonica, nell'abitato di Temu', abbiamo realizzato una lottizzazione con una meravigliosa vista sul gruppo dell'Adamello.
La lottizzazione composta da 4 piccoli edifici, insistenti su un lotto verde di 1600 mq, è situata in località Molina vicino al centro del paese.
Gli immobili sono realizzati seguendo il protocollo Casa Clima GOLD e certificati tramite dei test dall'ente certificatore al fine di verificarne l'effettiva qualità costruttiva ed efficienza energetica.
La progettazione interna delle unità immobiliari è seguita passo passo dalla nostra Azienda al fine di soddisfare le richieste dei clienti, sia in termini di spazio che di finitura creando così una casa su misura.
Le finiture esterne saranno tipiche degli edifici di montagna quali la vera pietra, il legno carbonizzato trattato con tecnica Shou Sugi Ban, la copertura in ardesia, gli intonaci in calce, le tinteggiature in grasselo di calce...etc.
La lottizzazione è dotata di un impianto a pompa di calore GEOTERMICA con sonde verticali per la produzione di acqua calda sanitaria e per il riscaldamento.
A compensazione dei consumi elettrici è stato installato un impianto FOTOVOLTAICO da 17kw.
Ogni unità immobiliare è dotata di VMC decentralizzata e canalizzata anche sui bagni per il controllo delle qualità dell'aria interna.
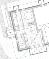
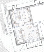
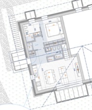
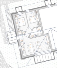
SOLUZIONE "La VILLETTA" d'angolo
Alpi
Alpi centrali
Alpi-Centrali
Giuseppe-Spiritelli
Giuseppe Spiritelli
Manuel-Spiritelli
Manuel Spiritelli
Francesca-Spiritelli
Francesca Spiritelli
Valter-Spiritelli
Valter Spiritelli
Renato-Spiritelli
Renato Spiritelli
Gruppo-Spiritelli
Gruppo Spiritelli
Spiritelli
Spiritelli-s.r.l.
Impresa-Spiritelli
Appartamenti-Vezza-d-Oglio
Appartamenti Vezza d’Oglio
Appartamenti-Ponte-di-Legno
Appartamenti Ponte di Lengo
Appartamento-Vezza-d-Oglio
Appartamento Vezza d’Oglio
Appartamenti-Temu
Appartamenti Temu
Villetta-Vezza-d-Oglio
Villetta Vezza d’Oglio
Villa-Singola-Vezza-d-Oglio
Villa singola Vezza d’Oglio
villa singola Temu
villa singola Ponte di Legno
Trilocale-Vezza-d-Oglio
Trilocale Vezza d’Oglio
Bilocale-Vezza-d-Oglio
Bilocale Vezza d’Oglio
Immobili-Vezza-d-Oglio
Immobili Vezza d’Oglio
Immobili-Ponte-di-Legno
Immobili Ponte di Legno
Immobili-Temù
Immobili Temù
Immobili Spiritelli
Vendita-Immobili-Vezza-d-Oglio
Vendita Immobili Vezza d’Oglio
Vendita-Immobili-Ponte-di-Legno
Vendita Immobili Ponte di Legno
Vendita-Immobili-Temu
Vendita Immobili Temu
Nuove-Costruzioni-Vezza-d-Oglio
Nuove Costruzioni Vezza d’Oglio
Nuove-Costruzioni-Temu
Nuove Costruzioni Temu
Nuove-Costruzioni-Ponte-di Legno
Nuove Costruzioni Ponte di Legno
Nuove-Case-Vezza-d-Oglio
Nuove case Vezza d’Oglio
Nuovi-Case-Temu
Nuovi case Temu
Nuovi-Appartamenti-Vezza-d-Oglio
Nuovi Appartamenti Vezza d’Oglio
Nuovi-Appartamenti-Temu
Nuovi Appartamenti Temu
Residenza-Acova
Residenza acova
Isola di San Pietro
Isola di Pietro
Carloforte
Carloforte-Sardegna
Carolforte-Spiritelli
Sardegna-Spiritelli
Residence-Sardegna
Residence-Spiritelli
ONLUS-Spiritelli
Nonna-Renata-ONLUS-S
piritelli
ODV-Spiritelli
Nonna-Renata-Spiritelli
Art-Design-Spiritelli-Manuel
Geotermico
Fotovoltaico
Alta efficienza energetica
Manuel Spiritelli
Giuseppe Spiritelli
Classe A
Val Grande
Bramito cervi
Casa Klima
Casa Clima
Geotermico
Cormignano
Certificazione energetica
Ytong
Sismico
Anti sismico
Fibra di legno
Gomma ricilata
Mapei
Casaclima Awards
CasaClima starterKit
Shou sugi ban
isolamento acustico
risparmio energetico
costi irrisori
case Vezza
case Temu
case ponte di legno
grande-appartamento-ponte-di-legno
comunita energetica temu
comunita energetica vezza
comunita energetica ponte di legno
Impresa Spiritelli
Impresa Bonavetti
Impresa Citroni
Impresa M.G. Occhi
Spiritelli
Bonavetti
Bonavetti Costruzioni
Spiritelli-Vezza-d-Oglio
Spiritelli Vezza d’Oglio
Bonavetti Vezza d'Oglio
Cantieri-Spiritelli
Cantieri Spiritelli
Cantieri Bonavetti
Appartamenti-Spiritelli
Appartamenti Spiritelli
Appartamenti Bonavetti
Villetta-Spiritelli
Villetta Spiritelli
Villetta Bonavetti
Villa-Spiritelli
Villa Spiritelli
Villa Bonavetti
Lottizzazione-Spiritelli
Immobiliare-Spiritelli
Immobiliare Spiritelli
Immobiliare Bonavetti
Immobiliare Val Grande
Immobiliare Poli
Immobiliare Tremonti
Immobiliare-Vezza-d-Oglio
Immobiliare Vezza d’Oglio
Immobiliare-Ponte-di-Legno
Immobiliare Ponte di legno
Immobiliare-Temu
Immobiliare Temu
Impresa-Vezza-d-Oglio
Impresa Vezza d’Oglio
Costruzioni-Vezza-d-Oglio
Costruzioni Vezza d’Oglio
Costruzioni-Ponte-di-Legno
Costruzioni Ponte di Legno
Cantiere-Vezza-d-Oglio
Cantiere Vezza d’Oglio
Cantiere-Ponte-di-Legno
Cantiere Ponte di Legno
Cantiere-Temu
Cantiere Temu
Costruzioni-Vezza-d-Oglio
Costruzioni Vezza d’Oglio
Costruzioni-Spiritelli
Costruzioni Spiritelli
Costruzioni Bonavetti

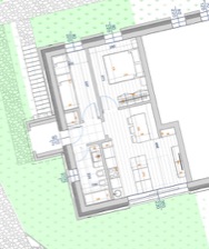
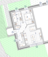
Appartamento Piano Terra
seleziona per scaricare il disegno completo



HOME
Immobiliare
Residence
Sociale
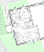
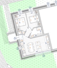
Appartamento Piano Primo - Mansarda
seleziona per scaricare il disegno completo







